Автомобильные Форумы POKATILI.RU

Форумы Добровольного Общества Взаимного Обеспечения на Дорогах
Текущее время: Пт янв 23, 2026 23:27

Часовой пояс: UTC + 4 часа [ Летнее время ]




Начать новую тему Ответить на тему  [ Сообщений: 66 ]  На страницу Пред.  1, 2, 3, 4, 5  След.
Автор Сообщение
 Заголовок сообщения:
СообщениеДобавлено: Пн май 02, 2011 23:49 
Не в сети
Специалист широкого профиля

Зарегистрирован: Ср мар 08, 2006 16:33
Сообщения: 3975
Откуда: Харьков
CSpirit писал(а):
Сегодня выкрутил датчик который стоял на нем опозновательных параметром нету только температура выбита 102-97
Такой датчик должен стоять на двигателе CVH.

_________________
Ford Escort хэтч, CVH 1,4 F6D (сейчас карб Pierburg 1B3 ), май 90г., красный, люк, ЦЗ.


Вернуться к началу
 Профиль  
 
 Заголовок сообщения:
СообщениеДобавлено: Вт май 03, 2011 11:03 
Не в сети
Модератор форума
Модератор форума
Аватара пользователя

Зарегистрирован: Ср сен 01, 2010 13:53
Сообщения: 1979
Откуда: Россия, Питер, центральный р-н
Машина: другой Ford
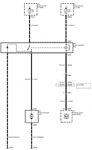
:shock: пасиба, мда походу движок работал с повышенной тепловой нагрузкой :(
На сколько это критично и какие последствия могут быть??

а второй впрос какой схеме верить??
Если в Tis смотреть то реле включения вентилятора есть
а если по другим схемам смореть то вентилятор включен напрямую через датчик
Изображение


Вложения:
Комментарий к файлу: tis
W17290801.jpg
W17290801.jpg [ 75.58 КБ | Просмотров: 10918 ]

_________________
С уважением, Антон.
-------------------------------------
Ford Focus 2006 универсал TDCI 1,8
был Ford Escort 1997 универсал Zetec 1.6 16v
Вернуться к началу
 Профиль  
 
СообщениеДобавлено: Чт апр 19, 2012 11:36 
Не в сети
ученик форума
ученик форума

Зарегистрирован: Пт янв 06, 2012 14:19
Сообщения: 3
Машина: Ford Escort
Баян !
сдох у меня вентилятор решил заменить на ВАЗовский был приобретен карлсон в месте с дифузором (от 09 кажись)
там дифузор сварен! мне други отсверлили крепление с вазовского дифузора
на родном обрезали крепление (три лучика ) до основания
приварили Вазовский ( после того как выставили ровно )
Р.S смазать новый моторчик таки стоит там смазки не было так-что проверяйте при установке


Вернуться к началу
 Профиль  
 
СообщениеДобавлено: Чт апр 19, 2012 21:19 
Не в сети
чайник форума (знак 70)
чайник форума (знак 70)
Аватара пользователя

Зарегистрирован: Сб сен 19, 2009 11:09
Сообщения: 224
Откуда: Славянск , Украина .
Машина: Ford Escort
У моего Эскорта , еще предыдущим владельцем , было переделано включение вентилятора охлаждения радиатора.
После остановки двигателя , "карлсон" через некоторое время включается и маслает минуты 3.
В принципе так и должно быть : циркуляции ОЖ - нет , температура - растет ., вот реле включения и срабатывает. Но на стоянках народ удивляется .

_________________
Ford Escort МК7 , 1.3HCS, 1995 г.


Вернуться к началу
 Профиль  
 
СообщениеДобавлено: Пт дек 28, 2012 21:46 
Не в сети
чайник форума (знак 70)
чайник форума (знак 70)

Зарегистрирован: Чт окт 25, 2012 22:47
Сообщения: 66
Откуда: Москва
Машина: Ford Escort
Вчера при езде вентилятор начал жутко трещать при работе,сегодня не ожил вообще. Подскажите какой аналог можно воткнуть,если от ваз,то от девятой модели? Или лучше разборки в Москве подскажите где можно б/у купить.

_________________
Escort Mk7 '97 CVH1.6 Weber


Вернуться к началу
 Профиль  
 
СообщениеДобавлено: Ср июл 03, 2013 2:04 
Не в сети
Модератор форума
Модератор форума
Аватара пользователя

Зарегистрирован: Ср сен 01, 2010 13:53
Сообщения: 1979
Откуда: Россия, Питер, центральный р-н
Машина: другой Ford
Кулер после потопа стал жестко визжать, ак я понимаю сдохли подшипники скольжения посему вопрос как это побороть?
как вариант смазать но как?
вариант 2 снять кулер и пребрать, но нигде не нашел подробной инструкции, ямы нет максимум это бордюр + домкрат.
вариант 3 заменить кулер на подобный, что от ВАЗа пойдет? какие габаритные размеры у кулера ( диаметр, толщина, мощность)?

_________________
С уважением, Антон.
-------------------------------------
Ford Focus 2006 универсал TDCI 1,8
был Ford Escort 1997 универсал Zetec 1.6 16v


Вернуться к началу
 Профиль  
 
СообщениеДобавлено: Чт июл 04, 2013 2:56 
Не в сети
Модератор форума
Модератор форума
Аватара пользователя

Зарегистрирован: Ср сен 01, 2010 13:53
Сообщения: 1979
Откуда: Россия, Питер, центральный р-н
Машина: другой Ford
Какая глубина у вентилятора на Zetec?
нужны габаритные размеры

_________________
С уважением, Антон.
-------------------------------------
Ford Focus 2006 универсал TDCI 1,8
был Ford Escort 1997 универсал Zetec 1.6 16v


Вернуться к началу
 Профиль  
 
СообщениеДобавлено: Пт авг 16, 2013 0:10 
Не в сети
чайник форума (знак 70)
чайник форума (знак 70)
Аватара пользователя

Зарегистрирован: Чт ноя 10, 2011 2:18
Сообщения: 160
Откуда: Белоруссия
На CVH подходит вентилятор с опеля кадета, точь в точь. С гольфа, но там два уха а надо три, можно приварить. ТОлько сделать фишки. Я разламаю старый мотор, возьму фишку и припаяю опелевскую. Достал вентилятор с кадета. Один в один.

_________________
форд эскорт 1.4 моно 1994г


Вернуться к началу
 Профиль  
 
СообщениеДобавлено: Пн авг 19, 2013 23:50 
Не в сети
ученик форума
ученик форума

Зарегистрирован: Вс апр 28, 2013 4:02
Сообщения: 9
Машина: Ford Escort
купил какойто fenox в магазине отечественных запчастей.двигатель широкий но плоский.стал легко после просверливания 3 отверстий.сидит как родной и размеры точ в точь
машинка эскорт 95- 1.4i


Вернуться к началу
 Профиль  
 
СообщениеДобавлено: Пт авг 30, 2013 23:11 
Не в сети
беспечный ездок форума
беспечный ездок форума
Аватара пользователя

Зарегистрирован: Сб июн 28, 2008 11:26
Сообщения: 699
Откуда: Минск
подскажите мощность родного вентилятора ?
Может кто-нибдь знает вазовский аналог без переделок и чтобы не жрал много ?
Заранее благодарен!

_________________
Ford ESCORT 94 год хэтч 5 дверей 1,6 16v 90лс
Мнений может быть много, но решение принимает кто-то один!
Я спокоен как слоник!


Вернуться к началу
 Профиль  
 
СообщениеДобавлено: Сб авг 31, 2013 0:33 
Не в сети
чайник форума (знак 70)
чайник форума (знак 70)
Аватара пользователя

Зарегистрирован: Чт янв 27, 2011 2:09
Сообщения: 238
Откуда: Беларусь, Лунинец
wolkarthyr писал(а):
подскажите мощность родного вентилятора ?
Может кто-нибдь знает вазовский аналог без переделок и чтобы не жрал много ?
Заранее благодарен!

А, что с родным вентилятором стало?

_________________
escort 1.6D 1989 (утилизирован), escort 1.6 16V 1998 (продан), Peugeot 206 SW 2.0 16V GTI


Вернуться к началу
 Профиль  
 
СообщениеДобавлено: Сб авг 31, 2013 10:02 
Не в сети
беспечный ездок форума
беспечный ездок форума
Аватара пользователя

Зарегистрирован: Сб июн 28, 2008 11:26
Сообщения: 699
Откуда: Минск
при включении свистит подшибник!

_________________
Ford ESCORT 94 год хэтч 5 дверей 1,6 16v 90лс
Мнений может быть много, но решение принимает кто-то один!
Я спокоен как слоник!


Вернуться к началу
 Профиль  
 
СообщениеДобавлено: Вс июн 15, 2014 12:27 
Не в сети
чайник форума (знак 70)
чайник форума (знак 70)
Аватара пользователя

Зарегистрирован: Сб авг 24, 2013 6:29
Сообщения: 201
Откуда: Костанай
Машина: другое авто
ребята посоветуйте, от чего поставить, у меня вентилятор вообще сломался, сперва крепления а потом и моторчик....желательно от ваза, с минимальными переделками, а по разборкам фордов таких годов нет в нас или мало, 1,4 cvh, cfi, 1991

_________________
Форд эскорт 1, 4 моно 1991 хэч


Вернуться к началу
 Профиль  
 
СообщениеДобавлено: Вт июн 17, 2014 12:11 
Не в сети
чайник форума (знак 70)
чайник форума (знак 70)
Аватара пользователя

Зарегистрирован: Сб авг 24, 2013 6:29
Сообщения: 201
Откуда: Костанай
Машина: другое авто
че никто ответить не может...

_________________
Форд эскорт 1, 4 моно 1991 хэч


Вернуться к началу
 Профиль  
 
СообщениеДобавлено: Ср июн 18, 2014 14:23 
Не в сети
ученик форума
ученик форума
Аватара пользователя

Зарегистрирован: Чт апр 24, 2014 17:08
Сообщения: 18
Откуда: РФ, Брянск
Машина: Ford Escort
Нивовский сдвоенный, передний, 25А, ваз 01-хх(на все, разница в кронштейне между 01-07 и 08-15) 16А, расположение заднее. Впиндюрить вообще можно любой, даже без сварки, одними саморезами и полетом фантазии. Если с ваза то лучше новые, 7-8 лопастей на подшипнике, и тихо и дует прилично. Я так понимаю тебе нужны реальные примеры кто и как сделал?

_________________
Ford Escort универсал, 1991, CVH 1.4 (был CFI) карб 083 врезной + распределитель форд + эпхх (ваз, энергомаш), CLX


Вернуться к началу
 Профиль  
 
Показать сообщения за:  Поле сортировки  
Начать новую тему Ответить на тему  [ Сообщений: 66 ]  На страницу Пред.  1, 2, 3, 4, 5  След.

Часовой пояс: UTC + 4 часа [ Летнее время ]


Кто сейчас на конференции

Сейчас этот форум просматривают: нет зарегистрированных пользователей и гости: 1


Вы не можете начинать темы
Вы не можете отвечать на сообщения
Вы не можете редактировать свои сообщения
Вы не можете удалять свои сообщения
Вы не можете добавлять вложения

Найти:
Перейти:  
cron
POWERED_BY
Русская поддержка phpBB
[ Time : 0.027s | 16 Queries | GZIP : Off ]