Автомобильные Форумы POKATILI.RU

Форумы Добровольного Общества Взаимного Обеспечения на Дорогах
Текущее время: Чт дек 25, 2025 12:27

Часовой пояс: UTC + 4 часа [ Летнее время ]




Форум закрыт Эта тема закрыта, вы не можете редактировать и оставлять сообщения в ней.  [ Сообщений: 15 ] 
Автор Сообщение
 Заголовок сообщения: Электрический глюк на дизеле...
СообщениеДобавлено: Чт янв 04, 2007 14:59 
Не в сети
профессионал форума
профессионал форума
Аватара пользователя

Зарегистрирован: Пт дек 22, 2006 16:37
Сообщения: 1643
Откуда: МО, г. Юбилейный
Ситуация: если включить зажигание, свечи исправно начинают разогреваться, потребляя ток (55А в начале и 35А через несколько секунд) и греются до полного разряда АКБ, причем неважно, холодный двиг или горячий. Если же запустить двигатель - то свечи отключаются (примерно через 10 секунд на горячем двигателе). Реле смотрели - оно самое обычное, без таймеров. По схеме - реле управляется мозгом, который теоретически берет инфу с датчика температуры. Но непонятно - неужели свечи так греют, что нагревают блок, на котором датчик расположен? При этом, вентилятор радиатора включается как должен, на приборной панели индикатор Т работает.
Лампочка накала на приборке никак не связана с работой реле, т.е. она гаснет, а свечи еще греются, но это в общем я могу объяснить.
Какие мысли?

_________________
Ford Escort 97 1.8 TD (RVA)
Microcat 2009
Ford TIS

Уважаемые! При запросе номера запчасти (FINIS-кода) указывайте VIN-код БОЛЬШИМИ БУКВАМИ! Третий символ в сочетании WF0 - ноль!


Вернуться к началу
 Профиль  
 
 Заголовок сообщения:
СообщениеДобавлено: Чт янв 04, 2007 22:11 
Не в сети
ас форума
Аватара пользователя

Зарегистрирован: Вс фев 06, 2005 0:03
Сообщения: 3470
Откуда: Питер
Так и должно быть, лампочка указывает приблизительное время до полного разогрева свечей (по мнению производителя).
При повороте ключа реле подает на свечи 12V.
Датчик температуры командует мозгам для запуска ГОРЯЧЕГО двигателя, при запуске холодного двигла питание подается каждый раз.
На некоторых системах после запуска питание падает в 2 раза(стоит сопротивление) что позволяет некоторое время подогревать топливо, система подогрева полностью отключается по достижении рабочей температуры.

_________________
И енто пройдет!
Honda CR-V 2001г.- стоит разбитая "доброй"тетенькой- вот вот сделаю!- сделано(весьма не плохо) катаюсь и радуюсь!
Reno Laguna 95г.- "поджопник"-продан


Вернуться к началу
 Профиль  
 
 Заголовок сообщения:
СообщениеДобавлено: Пт янв 05, 2007 0:54 
Не в сети
профессионал форума
профессионал форума
Аватара пользователя

Зарегистрирован: Пт дек 22, 2006 16:37
Сообщения: 1643
Откуда: МО, г. Юбилейный
Ну а где искать решение моей проблемы? Не кнопку ж в салон выводить и принудительно включать-выключать свечи...

_________________
Ford Escort 97 1.8 TD (RVA)
Microcat 2009
Ford TIS

Уважаемые! При запросе номера запчасти (FINIS-кода) указывайте VIN-код БОЛЬШИМИ БУКВАМИ! Третий символ в сочетании WF0 - ноль!


Вернуться к началу
 Профиль  
 
 Заголовок сообщения:
СообщениеДобавлено: Пт янв 05, 2007 2:07 
Не в сети
ас форума
Аватара пользователя

Зарегистрирован: Вс фев 06, 2005 0:03
Сообщения: 3470
Откуда: Питер
А в чем проблема-то?
Повернул ключ- подождал- запустил-- вот и все.
Зачем держать включеным зажигание не запуская двигатель?

_________________
И енто пройдет!
Honda CR-V 2001г.- стоит разбитая "доброй"тетенькой- вот вот сделаю!- сделано(весьма не плохо) катаюсь и радуюсь!
Reno Laguna 95г.- "поджопник"-продан


Вернуться к началу
 Профиль  
 
 Заголовок сообщения:
СообщениеДобавлено: Пт янв 05, 2007 2:09 
Не в сети
профессионал форума
профессионал форума
Аватара пользователя

Зарегистрирован: Пт дек 22, 2006 16:37
Сообщения: 1643
Откуда: МО, г. Юбилейный
lexa писал(а):
А в чем проблема-то?
Повернул ключ- подождал- запустил-- вот и все.
Зачем держать включеным зажигание не запуская двигатель?


Причин несколько...
1. Летом если жарко - печка без зажигания не крутит.
2. Если считывают коды - зажигание включено.

Да и разобраться хочу.

_________________
Ford Escort 97 1.8 TD (RVA)
Microcat 2009
Ford TIS

Уважаемые! При запросе номера запчасти (FINIS-кода) указывайте VIN-код БОЛЬШИМИ БУКВАМИ! Третий символ в сочетании WF0 - ноль!


Вернуться к началу
 Профиль  
 
 Заголовок сообщения:
СообщениеДобавлено: Пт янв 05, 2007 2:16 
Не в сети
ас форума
Аватара пользователя

Зарегистрирован: Вс фев 06, 2005 0:03
Сообщения: 3470
Откуда: Питер
Считывать коды не так и долго а печкой ты посадиш АК так-же быстро, можно переключить печку на первое положение ключа(если есть такая нужда).
А разбираться здесь особо не в чем- такой алгоритм работы заложен производителем- можно только шаманить.

_________________
И енто пройдет!
Honda CR-V 2001г.- стоит разбитая "доброй"тетенькой- вот вот сделаю!- сделано(весьма не плохо) катаюсь и радуюсь!
Reno Laguna 95г.- "поджопник"-продан


Вернуться к началу
 Профиль  
 
 Заголовок сообщения:
СообщениеДобавлено: Пт янв 05, 2007 2:31 
Не в сети
профессионал форума
профессионал форума
Аватара пользователя

Зарегистрирован: Пт дек 22, 2006 16:37
Сообщения: 1643
Откуда: МО, г. Юбилейный
Ой да ладно, на первой скорости печка 25 ампер ну никак не ест...
Точно такой алгоритм заложен? И это не глюк мозга, датчиков или реле?

_________________
Ford Escort 97 1.8 TD (RVA)
Microcat 2009
Ford TIS

Уважаемые! При запросе номера запчасти (FINIS-кода) указывайте VIN-код БОЛЬШИМИ БУКВАМИ! Третий символ в сочетании WF0 - ноль!


Вернуться к началу
 Профиль  
 
 Заголовок сообщения:
СообщениеДобавлено: Пт янв 05, 2007 4:30 
Не в сети
ученик форума
ученик форума

Зарегистрирован: Вс дек 17, 2006 3:52
Сообщения: 19
Откуда: Бурштин, Україна
нормальная робота реле - это когда включил зажигание горит лампочка, лампочка гаснет и ещо несколько секунд должно подаватся питаниэ на свечи для того шоб нормально разогреть воздух в цилиндрах.
можно проверить так - береш контрольную лампу (если нет друга подрукой)) тогда з длинными концами) кладеш один провод лампи на масу а другой на "+" провод который идет к свечам (толстый красный).
включаэш зажигание с смотриш ..... если лампа на приборке погасла а контрольная лампа после этого через секунд 10-12(ьожет и бистрее) не погасла значить надо менять реле.
насчет того что реле берет инфу с датчика температуры несогласен он измеряет антифриз а не температуру в камере сгорания, значит с датчиком тут нечего не связано.
вся проблема тут реле накала свечей оно дожно работать так как я висше описал а если оно работае подругому значит тут надо смотреть електро цепь и реле.

_________________
Skype - bogdik81, рідко сиджу в ICQ 318320564
Ford Orion 1.6D 1988pp.
ВАЗ 2104 1,3(карб) 1980рр.
Несудите за плохой Руский


Вернуться к началу
 Профиль  
 
 Заголовок сообщения:
СообщениеДобавлено: Пт янв 05, 2007 13:57 
Не в сети
профессионал форума
профессионал форума
Аватара пользователя

Зарегистрирован: Пт дек 22, 2006 16:37
Сообщения: 1643
Откуда: МО, г. Юбилейный
Гыг. Собсно, вопрос опять остался без ответа. Еще раз уточню.
1. Если двиг холодный или горячий, включить зажигание и мерять ток, то свечи едят 50 А сначала и примерно 35 А секунд через 20. И едят до полного разряда АКБ. Если же запустить двигатель, то свечи отключаются через 10-20 секунд. Значит, реле исправно? Реле самое обычное, о четырех контактах... А вот откуда приходит управляющий сигнал? По электросхеме - с мозга, но тогда это попадос, мозг стоит нереальных денег... Почему при запущенном двигателе реле отключается, а при незапущенном - нет, сколько б не ждать?

_________________
Ford Escort 97 1.8 TD (RVA)
Microcat 2009
Ford TIS

Уважаемые! При запросе номера запчасти (FINIS-кода) указывайте VIN-код БОЛЬШИМИ БУКВАМИ! Третий символ в сочетании WF0 - ноль!


Вернуться к началу
 Профиль  
 
 Заголовок сообщения:
СообщениеДобавлено: Пт янв 05, 2007 16:26 
Не в сети
ас форума
Аватара пользователя

Зарегистрирован: Вс фев 06, 2005 0:03
Сообщения: 3470
Откуда: Питер
Я-ж написал--
После запуска двигла камера нагревается и ДТ подает мозгам сигнал на отключение реле подогрева свечей накала.
Свечами ты камеру не нагрееш!!!( с таким-же успехом можно зажигалкой комнату обогревать)
ВременнОе реле отсутствует!!!
Можно сделать врезку в управление реле или ДТ.

P.S.
Или купить вентилятор на лобовик и радоваться жизни :lol:

_________________
И енто пройдет!
Honda CR-V 2001г.- стоит разбитая "доброй"тетенькой- вот вот сделаю!- сделано(весьма не плохо) катаюсь и радуюсь!
Reno Laguna 95г.- "поджопник"-продан


Вернуться к началу
 Профиль  
 
 Заголовок сообщения:
СообщениеДобавлено: Пт янв 05, 2007 16:46 
Не в сети
профессионал форума
профессионал форума
Аватара пользователя

Зарегистрирован: Пт дек 22, 2006 16:37
Сообщения: 1643
Откуда: МО, г. Юбилейный
Во как... Значит, никакой защиты не предусмотрено... Забавно...
Спасибо!

_________________
Ford Escort 97 1.8 TD (RVA)
Microcat 2009
Ford TIS

Уважаемые! При запросе номера запчасти (FINIS-кода) указывайте VIN-код БОЛЬШИМИ БУКВАМИ! Третий символ в сочетании WF0 - ноль!


Вернуться к началу
 Профиль  
 
 Заголовок сообщения:
СообщениеДобавлено: Пт янв 05, 2007 19:51 
Не в сети
ас форума
Аватара пользователя

Зарегистрирован: Вс фев 06, 2005 0:03
Сообщения: 3470
Откуда: Питер
Защита конечно есть- по достижению свечами ~1005 градусов автоматика должна их отключить-меряется по сопротивлению- но если свечи старые или неисправные то этого может и не происходить- проверь сопротивление на свечах и сравни с книжкой.

_________________
И енто пройдет!
Honda CR-V 2001г.- стоит разбитая "доброй"тетенькой- вот вот сделаю!- сделано(весьма не плохо) катаюсь и радуюсь!
Reno Laguna 95г.- "поджопник"-продан


Вернуться к началу
 Профиль  
 
 Заголовок сообщения:
СообщениеДобавлено: Пт янв 05, 2007 20:27 
Не в сети
чайник форума (знак 70)
чайник форума (знак 70)

Зарегистрирован: Пн июл 17, 2006 12:41
Сообщения: 139
Откуда: СПб
Что-то вы в не те дебри полезли. Там по моему на определеное время примерно 12с накал включается и через реле, а ток свечей и температура свечей не меряется. Время нагрева у некоторых машин еще от температуры двигателя зависит т.е на горячем двигателе они могут вообще не включатся. У меня реле с таймером стояло и все. Напяжение на свечи отключалось по истечении времени или при повороте ключа в положение вращения стартера. Новго я думаю придумывать не кто не будет. Вот и все.

_________________
ESCORT 1.6i 89г Погиб
Sierra 4x4 91г Еще ездит
Taurus 3.0 90г Недвижимость
т +79219232525 Сергей


Вернуться к началу
 Профиль  
 
 Заголовок сообщения:
СообщениеДобавлено: Пт янв 05, 2007 21:06 
Не в сети
профессионал форума
профессионал форума
Аватара пользователя

Зарегистрирован: Пт дек 22, 2006 16:37
Сообщения: 1643
Откуда: МО, г. Юбилейный
lexa писал(а):
Защита конечно есть- по достижению свечами ~1005 градусов автоматика должна их отключить-меряется по сопротивлению- но если свечи старые или неисправные то этого может и не происходить- проверь сопротивление на свечах и сравни с книжкой.


Свечи практически новые, менял комплектом. Сопротивления свечей мерять не совсем правильно - там десятые доли ома, китайский тестер ниасилит. У меня примерно 0.1-0.3 Ом.

SergSPb писал(а):
Что-то вы в не те дебри полезли. Там по моему на определеное время примерно 12с накал включается и через реле, а ток свечей и температура свечей не меряется. Время нагрева у некоторых машин еще от температуры двигателя зависит т.е на горячем двигателе они могут вообще не включатся. У меня реле с таймером стояло и все. Напяжение на свечи отключалось по истечении времени или при повороте ключа в положение вращения стартера. Нового я думаю придумывать не кто не будет. Вот и все.


Об чем и речь... Даже на горячем двигателе они включаются, а отключаются только после запуска двигателя. Реле же у меня - самое простое, четырехконтактное, без таймера. Хотя на схеме нарисовано, что оно не простое... Сейчас попробую рисунок схемы выложить.

_________________
Ford Escort 97 1.8 TD (RVA)
Microcat 2009
Ford TIS

Уважаемые! При запросе номера запчасти (FINIS-кода) указывайте VIN-код БОЛЬШИМИ БУКВАМИ! Третий символ в сочетании WF0 - ноль!


Вернуться к началу
 Профиль  
 
 Заголовок сообщения:
СообщениеДобавлено: Пт янв 05, 2007 21:17 
Не в сети
профессионал форума
профессионал форума
Аватара пользователя

Зарегистрирован: Пт дек 22, 2006 16:37
Сообщения: 1643
Откуда: МО, г. Юбилейный
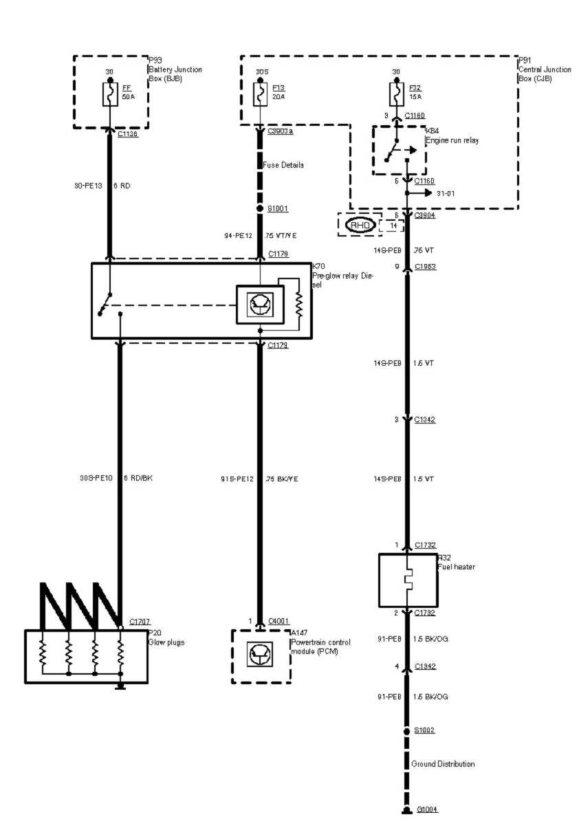
Картинка электросхемы с релюхой:


Вложения:
relay1.jpg [56.71 КБ]
Скачиваний: 39

_________________
Ford Escort 97 1.8 TD (RVA)
Microcat 2009
Ford TIS

Уважаемые! При запросе номера запчасти (FINIS-кода) указывайте VIN-код БОЛЬШИМИ БУКВАМИ! Третий символ в сочетании WF0 - ноль!
Вернуться к началу
 Профиль  
 
Показать сообщения за:  Поле сортировки  
Форум закрыт Эта тема закрыта, вы не можете редактировать и оставлять сообщения в ней.  [ Сообщений: 15 ] 

Часовой пояс: UTC + 4 часа [ Летнее время ]


Кто сейчас на конференции

Сейчас этот форум просматривают: нет зарегистрированных пользователей и гости: 3


Вы не можете начинать темы
Вы не можете отвечать на сообщения
Вы не можете редактировать свои сообщения
Вы не можете удалять свои сообщения
Вы не можете добавлять вложения

Найти:
Перейти:  
cron
POWERED_BY
Русская поддержка phpBB
[ Time : 0.041s | 16 Queries | GZIP : Off ]